豊島五丁目団地はJR京浜東北・根岸線「王子」駅バス7分 徒歩2~6分・東京メトロ南北線「王子」駅バス7分 徒歩2~6分です
隅田川に囲まれた広大な敷地に商店街や医療施設、郵便局など生活しやすい住環境です
赤羽駅、王子駅、池袋駅まで乗り換えなしでバスで行けるのもうれしいアクセス
1DK~3DKまで独身~家族までのタイプが用意されています
豊島五丁目団地

- 住所 北区豊島5-4
- 構造 鉄筋コンクリート造
- 戸数 4,959戸
家賃(月額)
| 部屋のタイプ | 月額家賃(円) | 床面積(㎡) |
|---|---|---|
| 1DK~3DK | 56,100円~120,200円 | 33㎡~67㎡ |
| 共益費 | 3,300円 |
|---|
| 駐車場 | 17,710円~22,220円 |
|---|

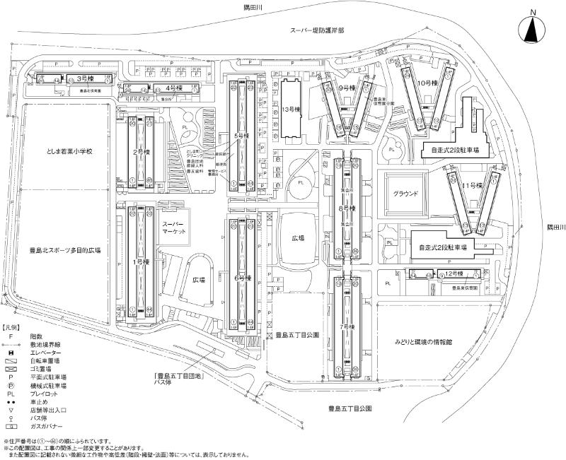
場所
豊島五丁目団地の入居申込資格

豊島五丁目団地の審査方法
本申込時に審査があります
| ①昨年度の所得証明書による審査 ②家賃等の一時払い制度による審査 ③基準貯蓄額による審査 |
のいずれかをお客様で選択していただきます
①昨年度の所得証明書を選択された場合
提出書類
- 給与所得の方の所得証明書(源泉徴収票・市町村長発行の課税証明証)
- 確定申告されている方の所得証明書(税務署発行の納税証明証その2)
- 世帯全員分の住民票
※育休、産休、病欠等により必要所得が足りない場合は別途必要書類が必要です
※転職、新卒の方など勤続期間が1年未満の場合はUR所定の所得証明書をお勤め先で記載捺印が必要になります
基準月収(世帯でお申し込みの場合)
| 家賃 | 基準月額 |
|---|---|
| 82,500円未満 | 家賃の4倍以上 |
| 82,500円~200,000円未満 | 33万円以上 |
| 200,000円以上 | 40万円以上 |
基準月収(単身でお申し込みの場合)
| 家賃 | 基準月額 |
|---|---|
| 62,500円未満 | 家賃の4倍以上 |
| 62,500円~200,000円未満 | 25万円以上 |
| 200,000円以上 | 40万円以上 |
【所得証明書の諸費用】
当月(日割り)家賃+当月(日割り)共益費となります
②家賃等の一時払い制度による審査を選択された場合
契約時に一年分の家賃と共益費の先払いで所得審査が不要になります
【一時払いの諸費用】
年間家賃+年間共益費+敷金2ヵ月+当月(日割り)家賃+当月(日割り)共益費となります
③基準貯蓄額による審査を選択された場合
貯蓄が家賃100倍以上であることで証明書を提出。所得審査は不要になります
【基準貯蓄額の諸費用】
当月(日割り)家賃+当月(日割り)共益費となります
豊島五丁目団地お祝い金キャッシュバック

当社ではUR賃貸へのお引越しを考えている方にお得なサービスをご提供させていただいております
入居前に当社でお部屋の仮予約をしていただき、書類をUR賃貸にご提出してご入居いただきますとご入居お祝い金として家賃1か月分のキャッシュバックを行っています
余計な費用がかかるということもありません
UR営業所でマチ不動産の斡旋でお部屋を仮予約する(電話・メール不可)
現地見学
仮予約フォームにご入力・書類送付
本申込・契約(UR賃貸営業所)
鍵渡し
当社に請求
入居お祝い金お振込み





